Looking for a smart, economical way to build your new home? Look no further than Clever Living Co.
Looking for a smarter, faster way to build? BK Patterson is proud to be an approved Clever Living Co. builder, offering a range of pre-designed homes that combine affordability, style, and sustainability. With Clever Living Co., you can enjoy the ease of choosing a pre-approved plan while still getting a home that’s built to last – and all with BK Patterson’s trusted expertise behind it.
Clever Living Co. homes are designed with simplicity and efficiency in mind. These pre-designed homes are perfect for those who want a high-quality build without the lengthy process of custom designs and council approvals. Because Clever Living Co. plans are already pre-consented, you can cut down on time and costs, getting into your new home faster without compromising on quality or functionality.
Clever Living Co. homes are designed to deliver more for less. You get a stylish, modern home at a fraction of the time and cost of a traditional build. By eliminating the need for extensive custom design work and leveraging a streamlined build process, we help keep your project on budget.
With pre-approved plans from Clever Living Co., there’s no waiting around for months on end for consent. These homes are ready to go, allowing us to start building as soon as you’re ready. If you’re looking to get into a new home sooner, Clever Living Co. is a great option.
As an approved Clever Living Co. builder, BK Patterson uses the same quality materials and craftsmanship we’re known for. Your home will be built to the highest standards, ensuring it stands the test of time.
Clever Living homes are designed with energy efficiency in mind, meaning you’ll enjoy a warm, comfortable home that’s also cost-effective to run. With modern insulation, glazing, and smart design, you can reduce your energy bills while minimising your environmental footprint.
Clever Living Co. is brought to you by Bunnings Trade
We offer the complete package from design and construction, right through to the finishing touches. What makes these kit set plans so attractive is that they are fully quantity surveyed so you know the cost of materials and labour up front.





Discover our new Clever Living Co cabin range — well-built small homes from 30m² to 70m², designed to make the most of every square metre. Solid materials, practical layouts, and efficient construction come together to create spaces that simply work.
Whether you’re adding an Airbnb, granny flat, or home office these cabins offer a straightforward, comfortable solution without cutting corners.
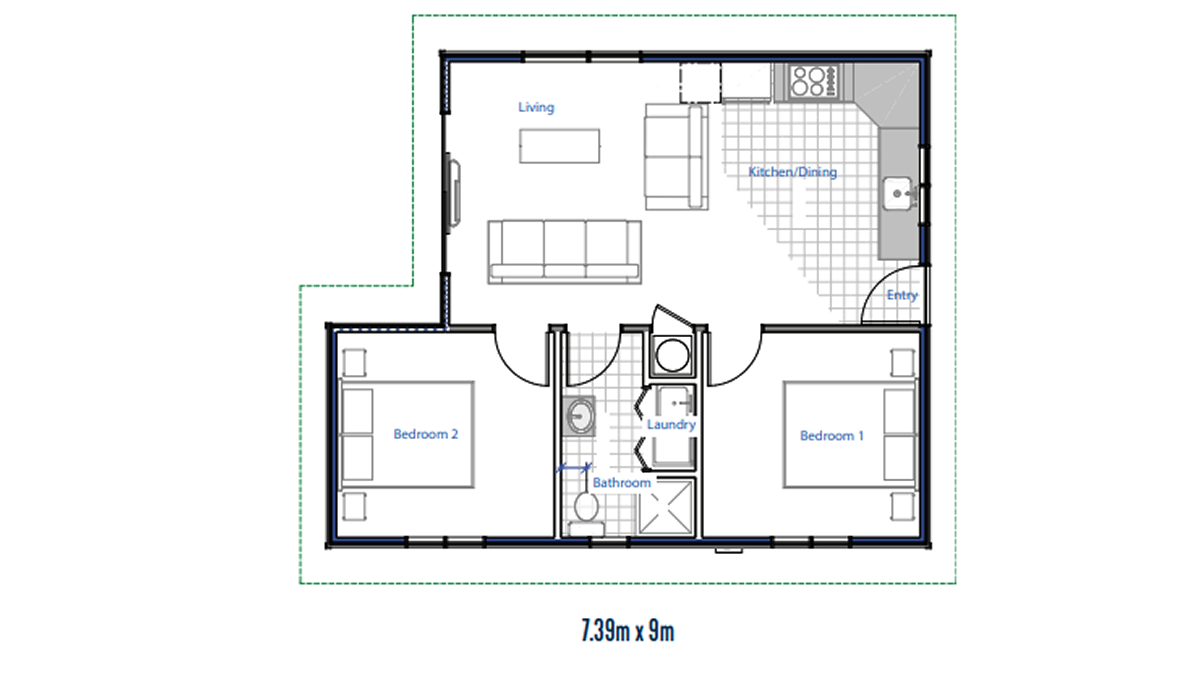
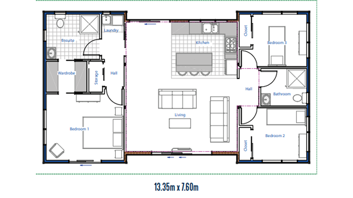
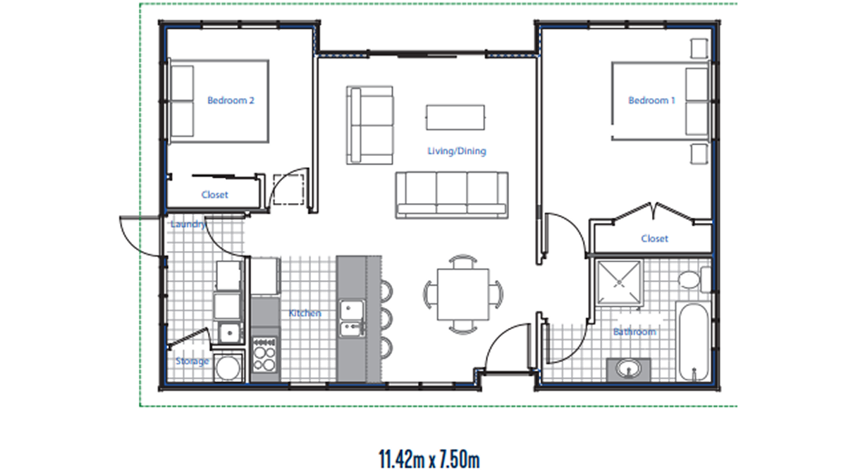
Take a look at the floor plans and get in touch when you’re ready to talk through the details.
The Angus, Dexter, Oxford, Suffolk and Highland house designs come with an MBIE MultiProof approval, which makes the building consent process much faster, and gets you into your new home sooner.
What is MultiProof?
Multiple-use approval for standardised building designs is a certification given to building plans and specifications that comply with the New Zealand Building Code (NZBC).
Building Consent
Our MultiProof designs will still need to go through the building consent application process. This allows the Building Consent Authority (BCA) to confirm:
Planning permission, resource consent and site specific engineering may still be required. We recommend you discuss your local consent requirements with us
Yes, our Oxford 2 bedroom showhome is available to view at 24 Fraser Cres, Upper Hutt. Viewings are by appointment only, please call 0508 888 128 to arrange a viewing.
Your Clever Living Co. approved builder will work with you to include all materials and items needed in your final building estimate. This includes site preparation costs, floor and window coverings, Fisher and Paykel kitchen appliances, Grid Connect smart home features, a heat pump and more. The majority of the materials are Supplied by Bunnings Trade, while the remaining components will be sourced from local specialists.
We generally recommend sticking to the specifications we provide, as they have been designed to keep your new build affordable and timely.
However, we understand that sometimes, changes are necessary and we will accommodate these changes This may require additional approvals and costs.
With a 10-year structural guarantee, a 2-year workmanship guarantee, and comprehensive product warranties, we stand behind our work. Our quality assurance process ensures every project meets the highest standards. We’ve built 35 years of trust and we plan to build 35+ more.
35+ years of building solid connections with councils, architects, and consultants mean we know how to keep things moving smoothly. Recognised for our quality workmanship and commitment, we’re a respected name in the Wellington building community.
The earlier we’re involved, the more creative solutions we can bring to the table. We work within your budget to craft the best outcome, saving you time, energy and money further down the track.
Building in Wellington means working with challenging terrain and climate conditions. Our earthworks team gives us the flexibility and resources to tackle tough sites in-house, ensuring your home is built to last through whatever nature throws its way.
Our 35+ years of experience from both client jobs and our own developments mean we know how to build efficiently and adapt to changes. BK Patterson is known for quality, reliability, and a straightforward building process.
With BK Patterson, you get a dedicated project manager who’ll guide you from your first planning session to the moment you walk through the door. We handle the full process, making sure every detail is thoughtfully executed for a seamless building journey. Each project manager also has the support of our back office staff who have a complete view of each job.
From initial consultations and budget planning to in-house quantity surveying, earthworks, and construction, we’ve got all bases covered. We handle as much as possible in-house to guarantee our quality standards. Where subcontractors are needed, we work exclusively with trusted professionals we’ve partnered with for over 20 years—so you know your project is in capable hands.
We believe in full transparency. Our itemised quotes come with detailed specifications, so there are no surprises along the way. We also offer fixed-price options for total peace of mind, with live cost tracking and frequent updates to keep your project on budget.